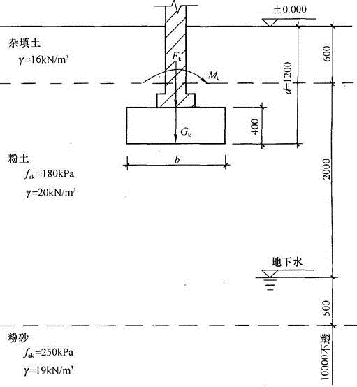
某六层砌体结构住宅,采用墙下钢筋混凝土条形基础,如图所示,根据公式fa=fak+ηbγ(b-3)+ηdγm(d-0.5)计算修正的地基承载力特征值fa为(假定b<3m按3m取值,ηb=0.5,ηd=2,基础底面以上土的加权平均重度γm=18kN/m3)( )。

- A.205.2kPa
- B.208.0kPa
- C.215.2kPa
- D.218.0kPa
正确答案及解析
正确答案
A
解析
根据题意,将相关数据代入公式fa=fak+ηbγ(b-3)+ηdγm(d-0.5)。其中:fak=180kPa,ηb=0.5,ηd=2,γm=18kN/m3,b=3m,d=1.2m,γ=20kN/m3(取基础所在粉土层的γ值)。代入得:fa=180+0.5×20×(3-3)+2×18×(1.2-0.5)=205.2kPa。
你可能感兴趣的试题
建设项目的实际造价是( )。
-
- A.中标价
- B.承包合同价
- C.竣工决算价
- D.竣工结算价
- 查看答案
某啤酒厂,日均废水量为2000m3/d,废水的CODCr为8000mg/L,BOD5为5800mg/L,SS为800mg/L,pH在8.5左右。要求处理后出水CODCr<200mg/L,SS<200mg/L。综合考虑技术和经济,以下工艺方案中最合理的是哪项?( )
-
- A.格栅→调节池→初沉池→UASB→二沉池→出水
- B.格栅→初沉池→厌氧生物滤池→UASB→二沉池→出水
- C.格栅→调节池→水解酸化池→曝气生物滤池→二沉池→出水
- D.格栅→调节池→UASB→好氧接触氧化池→二沉池→出水
- 查看答案

-
- A.100
- B.120
- C.130
- D.150
- 查看答案

-
- A.15.28
- B.16
- C.15
- D.16.74
- 查看答案

-
- A.18
- B.19
- C.21
- D.23
- 查看答案